REQUEST A TOUR If you would like to see this home without being there in person, select the "Virtual Tour" option and your agent will contact you to discuss available opportunities.
In-PersonVirtual Tour

$ 86,000
Est. payment /mo
Active
14844 Co Hwy 4 #3 Lake Park, MN 56554
1,306 Sqft Lot
UPDATED:
Key Details
Property Type Commercial
Listing Status Active
Purchase Type For Sale
MLS Listing ID 6765762
Year Built 2025
Annual Tax Amount $94
Tax Year 2025
Contingent None
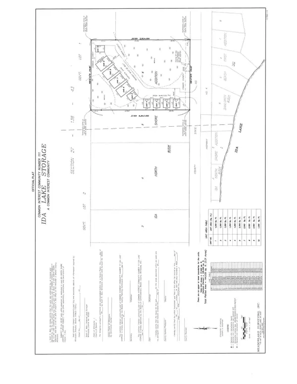
Lot Size 1,306 Sqft
Acres 0.03
Lot Dimensions 30x40
Property Description
IDEAL LOCATION at IDA LAKE STORAGE UNITS. Just off the corner of County Rd 5 and County Rd 4—Two sizes to choose from: 30x40 or 40x64. SPECS: Slab on grade 2'x6' construction, 2' over-hangs, floor drain, 16' W x14' H insulated garage doors, garage door openers (2 remotes), 4 windows, light and electric package included (4 over-head lights, 1 exterior light above garage door and 6 total outlets) & 200 amp panel. AMMENITIES: 4' apron, 45' W asphalt driveway, rock landscaping between buildings, $500/annual association fee for snow removal, grounds upkeep and general liability for common area. Currently under construction. Lake Region Electric has a one-time hook-up fee of $537. Greater Minnesota Gas has a one-time hook-up fee of $1,600 for natural gas.
Location
State MN
County Becker
Zoning Business/Commercial
Interior
Heating None
Cooling None
Inclusions Building
Fireplace No
Exterior
Parking Features None
Garage Spaces 1.0
Utilities Available Electric Separate, None
Roof Type Metal
Present Use Other
Building
Story One
Foundation 1200
Sewer None
Water None
Level or Stories One
Structure Type Steel Siding
Schools
School District Lake Park-Audubon Schools
Listed by Lisa Jasken • Re/Max Lakes Region
GET MORE INFORMATION






